什么是三级配电二级漏保、一机一闸一漏一箱?
配电箱(柜)、开关箱应分设N线、PE线端子板,进出线必须通过端子板做可靠连接。N线端子板必须与金属电器安装板绝缘;PE线端子板必须与金属电器安装板做电气连接。进出线中的N线必须通过N线端子板连接;PE线必须通过PE线端子板连接。PE线与端子板连接必须采用电气连接,电气连接点的数量应比箱体内回路数量多2个,1个为PE线进箱体的连接点,1个为重复接地的连接点。
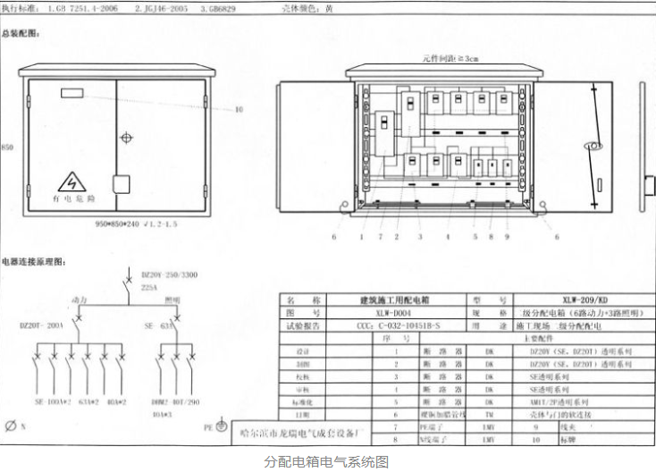
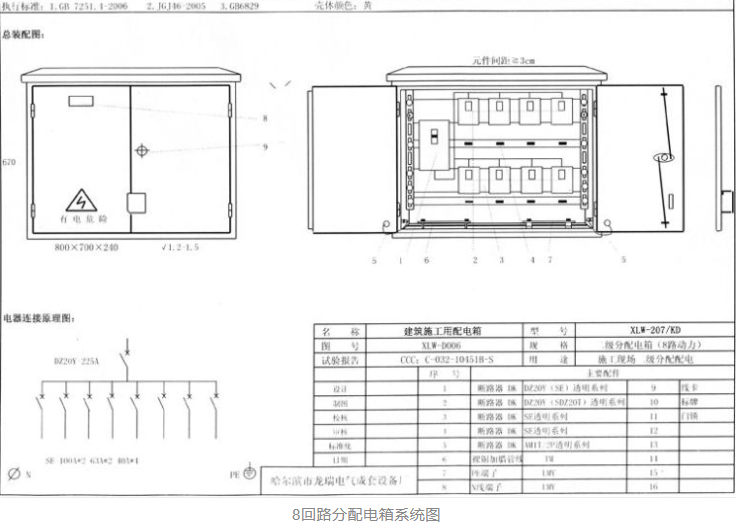
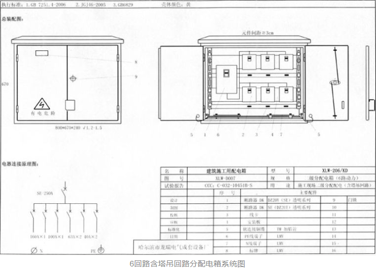
三级配电设置示例
一 总配电箱(柜)
内设400A-630A具有隔离功能的DZ20型透明塑壳断路器作为主开关,分路设置4-8路采用具有隔离功能的DZ20系列160A-250A透明塑壳断路器,配备DZ20L(DZ15L)透明漏电开关或LBM-1系列作为漏电保护装置,使之具有欠压、过载、短路、漏电、断相保护功能,同时配备电度表、电压表、电流表、两组电流互感器。漏电保护装置的额定漏电动作电流与额定漏电动作时间的乘积不大于30mA.S。最好选用额定漏电动作电流75-150mA,额定漏电动作时间大于0.1S小于等于0.2S,其动作时间为延时动作型。






二 分配电箱
1 含照明回路分配电箱 (动力回路与照明回路分路配电)
内设200A-250A具有隔离功能的DZ20系列透明塑壳断路器作为主开关(与总配电箱分路设置断路器相适应);采用DZ20或 KDM-1型透明塑壳断路器作为动力分路、照明分路控制开关;各配电回路采用DZ20或KDM-1透明塑壳断路器作为控制开关;PE线连线螺栓、N线接线螺栓根据实际需要配置。




2 不含照明回路分配电箱



三 开关箱(一机一闸一漏一箱)
1 地泵等大型设备动力开关箱
内设KDM1或DZ20(160A以上380V)系列透明塑壳断路器作为控制开关,配置DZ20L系列透明漏电断路器或LBM-1系列漏电断路器;PE线端子排为3个接线螺栓。


2 塔式起重机等设备动力开关箱
内设KDM1或DZ20(160A以上380V)系列透明塑壳断路器作为控制开关,配置DZ20L系列透明漏电断路器或LBM-1系列漏电断路器;PE线端子排为3个接线螺栓。


3 3.0KW以下用电设备开关箱
内设DZ20(20-40A、380V)或SE,KDMI系列透明塑壳断路器作为控制开关,配置DZ15LE(20-40A)或LBM1系列透明漏电断路器,PE线端子排为4个接线螺栓。



4 5.5KW以上用电设备开关箱
根据所控制设备额定容量选择控制开关及漏电断路器。控制开关为DZ20(SE或KDM1)系列透明塑壳断路器,漏电断路器为DZ15L系列透明系列漏电断路器;PE线接线螺栓为3个。


5 照明开关箱
内设KDM1—T/2(20-40A)断路器,配置DZ15L—20-40/290漏电断路器,PE线螺栓为3个。


注:开关箱中漏电断路器必须选择额定漏电动作电流不大于30mA,额定漏电动作时间不大于0.1S,电流速断、电磁式电动机保用产品。
总配电箱中漏电断路器应选用配电保护用产品。
配电室布置应符合下列要求
(一)配电柜正面的操作通道宽度,单列布置或双列背对背布置不小于1.5m,双列面对面布置不小于2m。
(二)配电柜后面的维护通道宽度,单列布置或双列面对面布置不小于0.8m,双列背对背布置不小于1.5m,个别地点有建筑物结构凸出的地方,则此点通道宽度可减少0.2m。
(三)配电柜侧面的维护通道宽度不小于1m。
(四)配电室的棚顶与地面的距离不低于3m。
配电箱架设应符合下列要求
(一)固定式配电箱、开关箱箱体中心点与地面垂直距离1.4~1.6m。移动式箱体与地面垂直距离0.8~1.6m。配电箱、开关箱应装设在坚固、稳定的支架上。
(二)配电箱、开关箱在建筑物坠落半径或塔吊臂旋转半径内的必须做双层防护棚,并采取隔离措施。
【附】施工临时用电管理要点
一 临时用电管理
(一)施工现场操作电工必须经过按国家现行标准考核合格后,持证上岗工作。
(二)各类用电人员必须通过相关安全教育培训和技术交底,掌握安全用电基本知识和所用设备的性能,考核合格后方可上岗工作。
(三)安装、巡检、维修或拆除临时用电设备和线路,必须由电工完成,并应有人监护。
(四)临时用电组织设计规定:
1)施工现场临时用电设备在5台及以上或设备总容量在50kW及以上的,应编制用电组织设计;否则应制定安全用电和电气防火措施。
2)装饰装修工程或其他特殊施工阶段,应补充编制单项施工用电方案。
(五)临时用电组织设计及变更必须由电气工程技术人员编制,相关部门审核,并经具有法人资格企业的技术负责人批准,经现场监理签认后实施。
(六)临时用电工程必须经编制、审核、批准部门和使用单位共同验收,合格后方可投入使用。
(七)临时用电工程定期检查应按分部、分项工程进行,对安全隐患必须及时处理,并应履行复查验收手续。
(八)室外220V灯具距地面不得低于3m,室内不得低于2.5m。
二 强制性条文
《施工现场临时用电安全技术规范》JGJ46-2005的强制性条文:
(一)施工现场临时用电工程电源中性点直接接地的220/380V三相四线制低压电力系统,必须符合下列规定:采用三级配电系统;采用TN-S接零保护系统;采用二级漏电保护系统。
(二)当采用专用变压器、TN-S接零保护供电系统的施工现场,电气设备的金属外壳必须与保护零线连接。保护零线应由工作接地线、配电室(总配电箱)电源侧零线或总漏电保 护器电源侧零线处引出。
(三)当施工现场与外电线路共用同一供电系统时,电气设备的接地、接零保护应与原系统保持一致,不得一部分设备做保护接零,另一部分设备做保护接地。
(四)TN-S系统中的保护零线除必须在配电室或总配电箱处做重复接地外,还必须在配电系统的中间处和末端处做重复接地。
(五)配电柜应装设电源隔离开关及短路、过载、漏电保护器。电源隔离开关分断时,应有明显可见的分断点。
(六)配电箱的电器安装板上必须分设N线端子板和PE线端子板。N线端子板必须与金 属电器安装板绝缘;PE线端子板必须与金属电器安装板做电气连接。
(七)配电箱、开关箱的电源进线端严禁采用插头和插座做活动连接。
(八)对混凝土搅拌机、钢筋加工机械、木工机械、盾构机械等设备进行清理、检查、维修时,必须将其开关箱分闸断电,呈现可见电源分断点,并关门上锁。
(九)下列特殊场所应使用安全特低电压照明器:
1)隧道、人防工程、高温、有导电灰尘、比较潮湿或灯具离地面高度低于2.5m等场所的照明,电源电压不应大于36V;
2)潮湿和易触及带电体场所的照明,电源电压不得大于24V;
3)特别潮湿场所、导电良好的地面、锅炉或金属容器内的照明,电源电压不得大于12V。
(十)照明变压器必须使用双绕组型安全隔离变压器,严禁使用自耦变压器。
(十一)对夜间影响飞机或车辆通行的在建工程及机械设备,必须设置醒目的红色信号灯,其电源应设在施工现场总电源开关的前侧,并应设置外电线路停止供电时的应急自备电源。
